
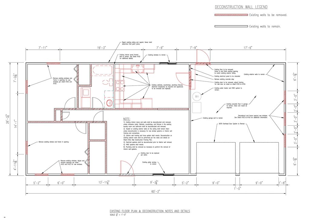
This project included the plans and designs for a full renovation and remodel of the exterior and interior of an existing home in Nampa, Idaho. The siding and roofing where replaced on the home after framing changes to move and replace windows where completed.

The interior of the home was deconstructed of all drywall, insulation, electrical and plumbing. The interior walls were not load bearing and would be replaced with new interior framing. The only wall left in place had plumbing venting and electrical wiring in it that did not need to move.

The new framing plan created space for an additional bedroom and master bathroom to create a 1100 square foot three bedroom, two full bath plus great room, kitchen and breakfast nook and new utility room area. The new utility room took up a small part of the oversized two care garage but still leaves plenty of parking and storage space.
Copyright © 2025 208 DESIGN+BUILD LLC, Idaho Registration #2571389
208 Design+Build Custom Homes and Renovations
All Rights Reserved.
Powered by GoDaddy